
Umweltbildungszentrum IGA 2017 Berlin
Projekt, 2014 – 2017
Ausgezeichnet mit dem Berliner Holzbaupreis 2019
"Die schönsten Holzhäuser Deutschlands 2020": 3. Platz
ARGE geskes.hack Landschaftsarchitekten bdla
und VIC Brücken- und Ingenieurbau GmbH, Potsdam
Planungs- und Bauzeit 01/2016-02/2017
Auftraggeber Grün Berlin GmbH
Nutzung Seminar-und Büroräume, Ausstellung und Café
Auftrag Lph 1–9 (Objektplanung)
Baukosten 700.000,- €
Bruttogrundfläche 238,0m²
Bruttorauminhalt 786,40m³
Abmessungen 7,00m × 34,0m
Planung Haustechnik Marko Augustat & Partner
Brandschutz hhpberlin Ingenieure für Brandschutz GmbH
Statik EiSat GmbH
Konstruktion
vorgefertigte Holzmodule mit biegesteifen Rahmenecken aus Holz
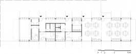
In einem stadtlandschaftlichen, naturnahen Raum entsteht mit dem Umweltbildungszentrum ein besonderer Bildungsort. Sowohl vor der IGA 2017, als auch während und nach dem Ausstellungsjahr wird an dieser Stelle ein Umweltbildungsprogramm zur Verfügung gestellt. Das Gebäude ist als Abfolge von Holz-Raummodulen mit zwischengeschalteten Licht- und Erschließungsfugen konzipiert. Das extensiv begrünte Dach tritt als flach geneigtes Dach mit offener Entwässerung hinter den Gebäudekörper und die offene Bekleidung zurück. Der verwendete Holzrahmenbau der Module wird an den Stirnseiten deutlich als Gestaltungselement hervorgehoben. Die Stirnseiten (Nord- und Südfassade) erhalten einbruchsichere Klappläden, die gleichzeitig den Sonnenschutz und die Verdunklung der Seminarräume gewährleisten.
Das Gebäude stellt einen Prototypen dar, der zeigen soll, was mit einem Holzmodulbau möglich ist. Die leichte Demontage der Module und der einfache Transport eröffnen die Chance, dieses System für vielfältigste andere Nutzungen einzusetzen.





Leitender Geschäftsführer:
Prof. Henry Ripke
Projektmitarbeiter:
Marcel Linke
Download Bürobroschüre Umweltbildungszentrum
Download Handout "Tag der Architektur"
Bildquellen: Hanns Joosten (hannsjoosten.de)


Umweltbildungszentrum IGA 2017 Berlin
Projekt, 2014 – 2017
Ausgezeichnet mit dem Berliner Holzbaupreis 2019
"Die schönsten Holzhäuser Deutschlands 2020": 3. Platz
ARGE geskes.hack Landschaftsarchitekten bdla
und VIC Brücken- und Ingenieurbau GmbH, Potsdam
Planungs- und Bauzeit 01/2016-02/2017
Auftraggeber Grün Berlin GmbH
Nutzung Seminar-und Büroräume, Ausstellung und Café
Auftrag Lph 1–9 (Objektplanung)
Baukosten 700.000,- €
Bruttogrundfläche 238,0m²
Bruttorauminhalt 786,40m³
Abmessungen 7,00m × 34,0m
Planung Haustechnik Marko Augustat & Partner
Brandschutz hhpberlin Ingenieure für Brandschutz GmbH
Statik EiSat GmbH
Konstruktion
vorgefertigte Holzmodule mit biegesteifen Rahmenecken aus Holz
In einem stadtlandschaftlichen, naturnahen Raum entsteht mit dem Umweltbildungszentrum ein besonderer Bildungsort. Sowohl vor der IGA 2017, als auch während und nach dem Ausstellungsjahr wird an dieser Stelle ein Umweltbildungsprogramm zur Verfügung gestellt. Das Gebäude ist als Abfolge von Holz-Raummodulen mit zwischengeschalteten Licht- und Erschließungsfugen konzipiert. Das extensiv begrünte Dach tritt als flach geneigtes Dach mit offener Entwässerung hinter den Gebäudekörper und die offene Bekleidung zurück. Der verwendete Holzrahmenbau der Module wird an den Stirnseiten deutlich als Gestaltungselement hervorgehoben. Die Stirnseiten (Nord- und Südfassade) erhalten einbruchsichere Klappläden, die gleichzeitig den Sonnenschutz und die Verdunklung der Seminarräume gewährleisten.
Das Gebäude stellt einen Prototypen dar, der zeigen soll, was mit einem Holzmodulbau möglich ist. Die leichte Demontage der Module und der einfache Transport eröffnen die Chance, dieses System für vielfältigste andere Nutzungen einzusetzen.






Leitender Geschäftsführer:
Prof. Henry Ripke
Projektmitarbeiter:
Marcel Linke
Download Bürobroschüre Umweltbildungszentrum
Download Handout "Tag der Architektur"
Bildquellen: Hanns Joosten (hannsjoosten.de)