
Indoor Skydiving, Berlin
Projekt, 2015
Generalplaner
mit EiSat GmbH
mit Marko Augustat und Partner
Bildergalerie zum Baufortschritt
Homepage "WINDOBONA Berlin GmbH"
Planungs- und Bauzeit 01/2015-10/2017
Auftraggeber Indoor Skydiving Berlin GmbH
Nutzung Freifall Trainingsanlage, Sporteinrichtung
Auftrag Lph 3 (in Teilen), Lph 4–8 (Generalplaner)
Grundfläche 30,6 × 22,9 m
Baukosten 2,2 Mio. EUR (netto)
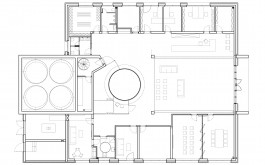
Bei dem geplanten Gebäude handelt es sich um einen Vertikal-Windkanal mit Servicegebäude zur Nutzung als Indoor-Skydiving-Anlage, die erste ihrer Art im Großraum Berlin. Das Bauwerk gliedert sich in zwei klar differenzierte Gebäudevolumen; den Turm und das Servicegebäude. Auf deren Kreuzungsstelle befindet sich die gläserne Flugkammer. Der Besucher hat durch eine große, offene Eingangshalle direkten Blick zur Flugkammer als Hauptattraktion. Die zwei Baukörper unterscheiden sich in den Proportionen sowie in den verwendeten Materialien. Für den Turm ist ein Korpus in Sichtbeton und im oberen Bereich eine Trapezblech-Kassetten-Fassade vorgesehen, die dem Wetterschutz und der Einhaltung des geforderten Schallschutzes dient. Das Servicegebäude, dessen Klinkerfassade, die den Duktus der denkmalgeschützten Nachbargebäude zeitgenössisch interpretiert, bietet als flacher, eingeschossiger Baukörper ausreichend Platz für den Empfangs- und Besucherbereich sowie Seminar-, Büro- und Serviceräume.





Leitender Geschäftsführer:
Prof. Henry Ripke
Projektmitarbeiter:
Christos Athanasiou


Indoor Skydiving, Berlin
Projekt, 2015
Generalplaner
mit EiSat GmbH
mit Marko Augustat und Partner
Bildergalerie zum Baufortschritt
Homepage "WINDOBONA Berlin GmbH"
Planungs- und Bauzeit 01/2015-10/2017
Auftraggeber Indoor Skydiving Berlin GmbH
Nutzung Freifall Trainingsanlage, Sporteinrichtung
Auftrag Lph 3 (in Teilen), Lph 4–8 (Generalplaner)
Grundfläche 30,6 × 22,9 m
Baukosten 2,2 Mio. EUR (netto)
Bei dem geplanten Gebäude handelt es sich um einen Vertikal-Windkanal mit Servicegebäude zur Nutzung als Indoor-Skydiving-Anlage, die erste ihrer Art im Großraum Berlin. Das Bauwerk gliedert sich in zwei klar differenzierte Gebäudevolumen; den Turm und das Servicegebäude. Auf deren Kreuzungsstelle befindet sich die gläserne Flugkammer. Der Besucher hat durch eine große, offene Eingangshalle direkten Blick zur Flugkammer als Hauptattraktion. Die zwei Baukörper unterscheiden sich in den Proportionen sowie in den verwendeten Materialien. Für den Turm ist ein Korpus in Sichtbeton und im oberen Bereich eine Trapezblech-Kassetten-Fassade vorgesehen, die dem Wetterschutz und der Einhaltung des geforderten Schallschutzes dient. Das Servicegebäude, dessen Klinkerfassade, die den Duktus der denkmalgeschützten Nachbargebäude zeitgenössisch interpretiert, bietet als flacher, eingeschossiger Baukörper ausreichend Platz für den Empfangs- und Besucherbereich sowie Seminar-, Büro- und Serviceräume.






Leitender Geschäftsführer:
Prof. Henry Ripke
Projektmitarbeiter:
Christos Athanasiou