
Sanierung eines Stadtpalais in Magdeburg
Projekt, 2019–2022
Planung- und Bauzeit 2019–2022
Auftraggeber privat
Nutzung Gewerberäume und Wohnungen
Auftrag Lph 1–8
Nutzfläche ca. 2500 m²
Denkmalschutz, Energetische Sanierung, KfW EH
Konstruktion Mauerwerk, Massivbau, Hofwände mit Sparrendach, Aufsparrendämmung nach EnEV 2016
Das Stadtpalais Thiele am Breiten Weg 232 in Magdeburg wurde als Teil einer geschlossenen Blockrandbebauung, 1885-87 errichtet. Es ist als Einzeldenkmal in der Denkmalliste des Landes Sachsen-Anhalt eingetragen.
Das siebengeschossige, vollunterkellerte Gebäude wurde als massiver Mauerwerksbau mit einem Dachgeschoss als Mansarddach mit Ziergiebeln errichtet. Alle aufgehenden Bauteile des Hauses sind in Mauerwerk ausgeführt. Die gesamten Fassadenflächen auf der Frontseite sind mit aufwendigen Elementen im Neorenaissancestil der Gründerzeit versehen. Bis auf geringe Änderungen der Kubatur im 5.OG befindet sich das Gebäude im Originalzustand.
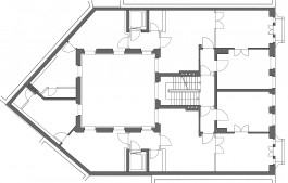
Die Erschließung erfolgt im EG über den Haupteingang und die Ladengeschäfte. Das Haupttreppenhaus befindet sich zentral im Gebäude vor dem Hof. Um das Gebäude zu erschliessen, werden zwei neue innenliegende Aufzüge gebaut.




Leitender Geschäftsführer:
Thomas Kolb
Projektmitarbeiter:
Bianca Schwenk
Jacob Pennington


Sanierung eines Stadtpalais in Magdeburg
Projekt, 2019–2022
Planung- und Bauzeit 2019–2022
Auftraggeber privat
Nutzung Gewerberäume und Wohnungen
Auftrag Lph 1–8
Nutzfläche ca. 2500 m²
Denkmalschutz, Energetische Sanierung, KfW EH
Konstruktion Mauerwerk, Massivbau, Hofwände mit Sparrendach, Aufsparrendämmung nach EnEV 2016
Das Stadtpalais Thiele am Breiten Weg 232 in Magdeburg wurde als Teil einer geschlossenen Blockrandbebauung, 1885-87 errichtet. Es ist als Einzeldenkmal in der Denkmalliste des Landes Sachsen-Anhalt eingetragen.
Das siebengeschossige, vollunterkellerte Gebäude wurde als massiver Mauerwerksbau mit einem Dachgeschoss als Mansarddach mit Ziergiebeln errichtet. Alle aufgehenden Bauteile des Hauses sind in Mauerwerk ausgeführt. Die gesamten Fassadenflächen auf der Frontseite sind mit aufwendigen Elementen im Neorenaissancestil der Gründerzeit versehen. Bis auf geringe Änderungen der Kubatur im 5.OG befindet sich das Gebäude im Originalzustand.
Die Erschließung erfolgt im EG über den Haupteingang und die Ladengeschäfte. Das Haupttreppenhaus befindet sich zentral im Gebäude vor dem Hof. Um das Gebäude zu erschliessen, werden zwei neue innenliegende Aufzüge gebaut.





Leitender Geschäftsführer:
Thomas Kolb
Projektmitarbeiter:
Bianca Schwenk
Jacob Pennington